联系我们
0577-62358686
QQ
630952297
扫一扫
返回顶部
服务热线:
0577-62358686
首页
关于我们
公司简介
荣誉证书
企业文化
产品中心
箱式变电站
环网柜、充气柜、电缆分支箱、开闭所
高压成套开关柜
低压成套开关柜
动力柜、三箱类、电表箱
高低压无功补偿装置系列
高压元器件
变压器
新闻资讯
公司新闻
行业资讯
成功案例
成功案例
资料下载
客户服务
在线留言
销售网络
联系我们
联系方式
人才招聘
热门关键词
:
产品中心
箱式变电站
环网柜、充气柜、电缆分支箱、开闭所
高压成套开关柜
低压成套开关柜
动力柜、三箱类、电表箱
高低压无功补偿装置系列
高压元器件
变压器
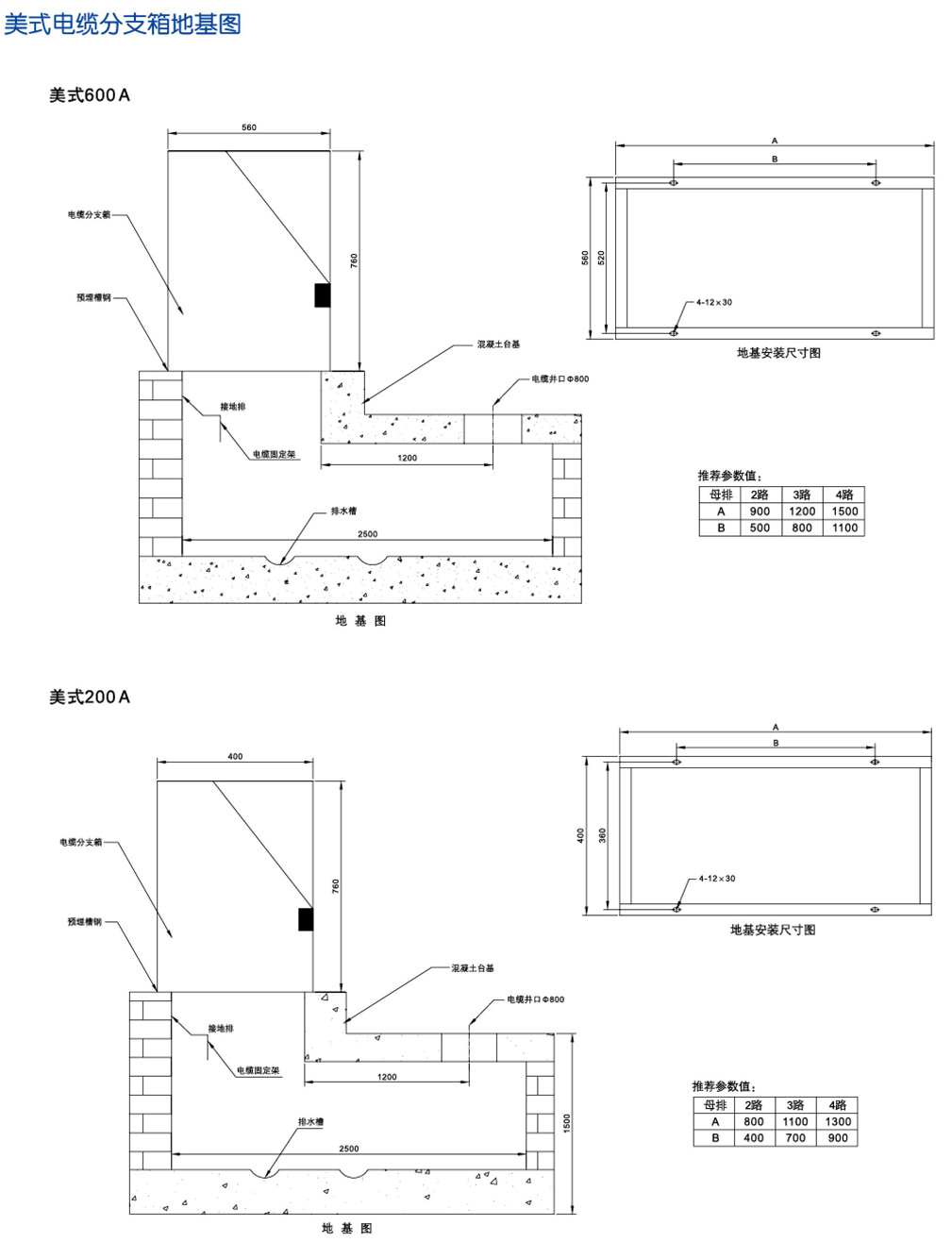
环网柜、充气柜、电缆分支箱、开闭所
当前位置:
首页
> 产品中心
DFW-(10KV.25KV.35KV)高压电缆分支箱系列(欧式、美式)